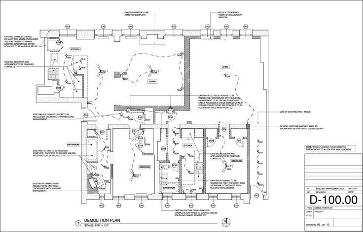
What is a Demolition Plan?
A Demolition Plan is a document that outlines how a building or structure will be safely and legally removed. It shows which parts of the building will be demolished, the methods and sequence of demolition, site protection measures, waste management, and how hazards like asbestos will be handled, ensuring compliance with building and planning regulations.
How Do I Obtain This Document?
1. Check what approvals you need. Houses need either:
- CDC (Complying Development Certificate) – through a private certifier, or
- DA (Development Application) – through your local council.
2. Hire a licensed demolition contractor. They prepare the demolition plan and do the work safely.
3. If your building has asbestos, hire a licensed asbestos remover too. Identify and plan safe removal of any asbestos before demolition.
4. Submit the plan for approval. Give it to your certifier (CDC) or council (DA) along with other required reports.
5. Notify SafeWork NSW if required: needed for buildings over 6m, load-bearing structures, or asbestos work.

